Cases

Palæhaven Fredericia

Funktion: Bolig projekt
Geografi: Fredericia
Status: igang
Størrelse: 2200 m²
Opgavetype: privat opdrag
Kunde: HjemBo

Om projektet

Vores vision er at opføre et nyt boligprojekt på hjørnet af Oldenborggade og Vendersgade, som
harmonerer med Fredericias bymidtes særlige karakter, samtidig med at det fremstår moderne
og fremsynet ved brug af nutidige byggeteknikker.
 
Arkitekturen vil drage nytte af de tidstypiske æstetiske detaljer, der kendetegner de
eksisterende bygninger i området, men vil samtidig tilbyde en nutidig fortolkning af disse
elementer. Bygningen skal passe ind i omgivelserne og samtidig have sin egen identitet i
bybilledet.
 
Bygningen vil blive placeret på den nuværende tomme grund som en afslutning af det
omkringliggende byrum. Med sin karrestruktur og det markante hjørne vil bygningen både
relatere sig til de omkringliggende bygninger og samtidig definere krydset og hjørnet på en
måde, der forstærker byens rumlige udtryk. Den karakteristiske afskæring af hjørnet vil skabe
en blød overgang omkring bygningen, hvilket tilfører hjørnet den særlige dynamik som
kendetegner Fredericia hjørnet.
 
Bygningens facade vil blive opdelt i mindre enheder, der ligner individuelle byhuse.
Materialeskift og variation i mønstre vil få disse enheder til at fremstå som selvstændige huse,
der står side om side. Denne opdeling nedskalerer bygningen og skaber en menneskelig skala,
som er tilpasset de øvrige bygninger langs vejene.
 
For at understøtte bygningens udtryk vil alle boliger have adgang fra gadesiden, hvor hver bolig
vil have sin egen indgang. Denne indgang fører igennem bygningen til bagsiden, hvor man
under terrassedækket finder adgang til parkeringsarealet og den centrale kerne med trappe og
elevator, der giver adgang til de øvrige etager og boliger.
 
De enkelte enheder vil have deres eget arkitektoniske udtryk og unikke karakter, hvilket
forstærker bygningens tilpasning til nabobygningerne. Som de omkringliggende bygninger vil
husene indeholde detaljer som vekslende vinduesrammer, der skaber en varieret facade med
interessante skyggespil.
 
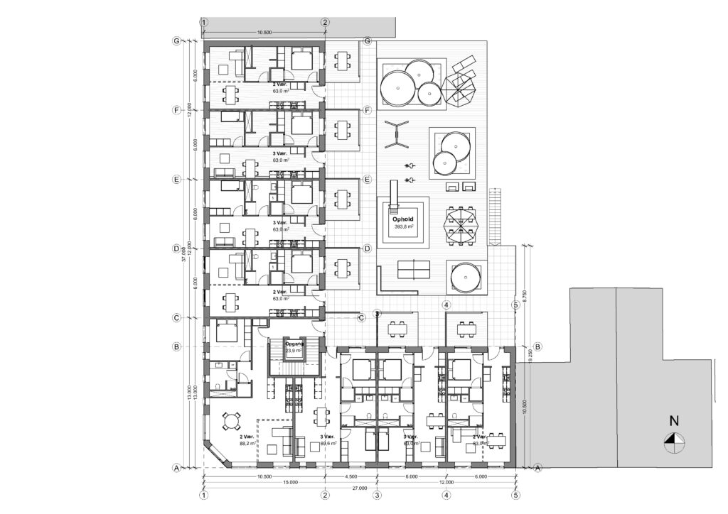
Projektet vil bestå af 28 boliger i forskellig størrelser, som 2- og 3-værelses lejligheder.
Lejlighederne på stueetagen vil være belyst fra en side i omkring halvdelen af dybden
sammenlignet med de øvrige boliger. De øvrige lejligheder vil være gennemlyste, hvor man fra
entréen bevæger sig gennem køkkenet til opholdsrummet, med soveværelser og badeværelser
på modsatte side.
 
Lejlighederne på første sal vil få adgang til deres egne private haver, som ligger i forlængelse af
det fælles terrassedæk, der fungerer som fælles opholdsareal med siddepladser, hvor beboerne
kan mødes og skabe fællesskab.
 
Disse fællesområder er designet til at fremme sundhed og modvirke ensomhed blandt
beboerne. Udover de fælles mødesteder vil alle lejligheder have deres egen altan tilknyttet
svalegangen, som tilbyder et semi-privat udendørs ophold. Disse altaner vil sammen med
svalegangen skabe et dynamisk udtryk med variation og skygger, som kan understøttes af
grønt kravlende beplantning på metaltråde, hvilket giver bygningen karakter af en vertikal have.
Dermed forsøger vi at få gårdrummet til at fremstå indbydende og grønt.
 
Projektet inkluderer også parkeringsfaciliteter til både biler og cykler samt rummelige
opbevaringsrum. Parkering af biler og cykler foregår fortrinsvis under terrasse dækket, men en
del vil også stå i det fri, da det ikke er hele gårdrummet som er overdækket.
Samlet set skabes der et projekt som i sin helhed er gennem tænkt og tilpasset området og
byens karakter og indordner sig byens besluttede rammer for udvikling indenfor voldene.
Dermed fuldendes karré strukturen for området og forstærke det samlede udtryk, samtidig med
at der skabes nye moderne boliger til gavn for byen og beboerne.

123 maple avenue, houston, tx 56034
+1 (888) 765 4326 / 765 4327
info@domainname.com
Curabitur sagittis lectus quis purus interua vulputate justo hererit asellus ullcorper sem vel tellus ultrices ac suscipit orci
north america
123 maple avenue, houston, tx 56034
+1 (888) 765 4326 / 765 4327
info@domainname.com
123 maple avenue, houston, tx 56034
+1 (888) 765 4326 / 765 4327
info@domainname.com
Curabitur sagittis lectus quis purus interua vulputate justo hererit asellus ullcorper sem vel tellus ultrices ac suscipit orci
north america
123 maple avenue, houston, tx 56034
+1 (888) 765 4326 / 765 4327
info@domainname.com