Cases

Tømmergården Tønder

Funktion: Bolig
Geografi: Tønder
Status: Opstart 2024
Størrelse: ca. 5150 m²
Opgavetype: privat opdrag
Kunde: privat
Entreprenør: CJ-as

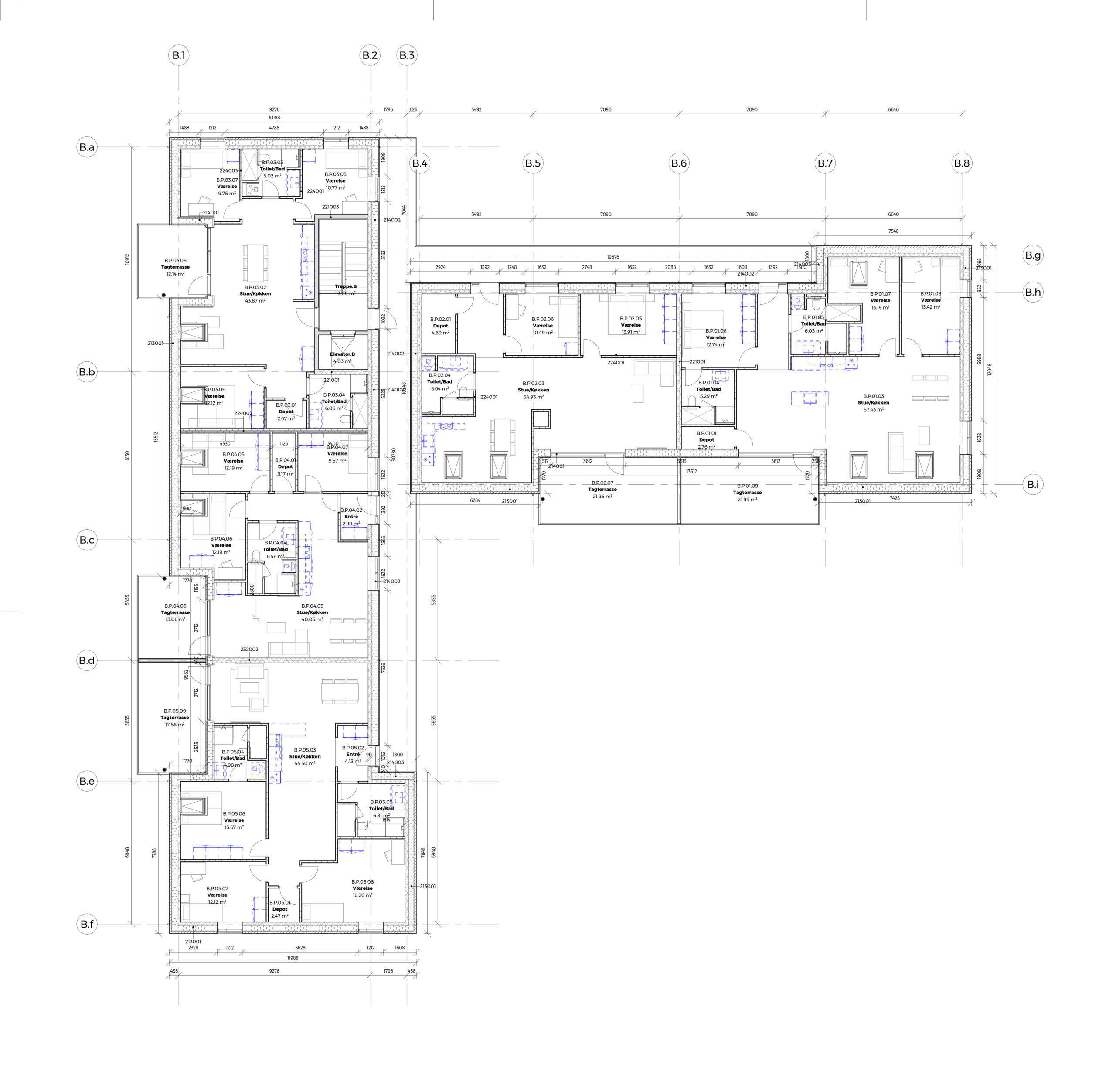
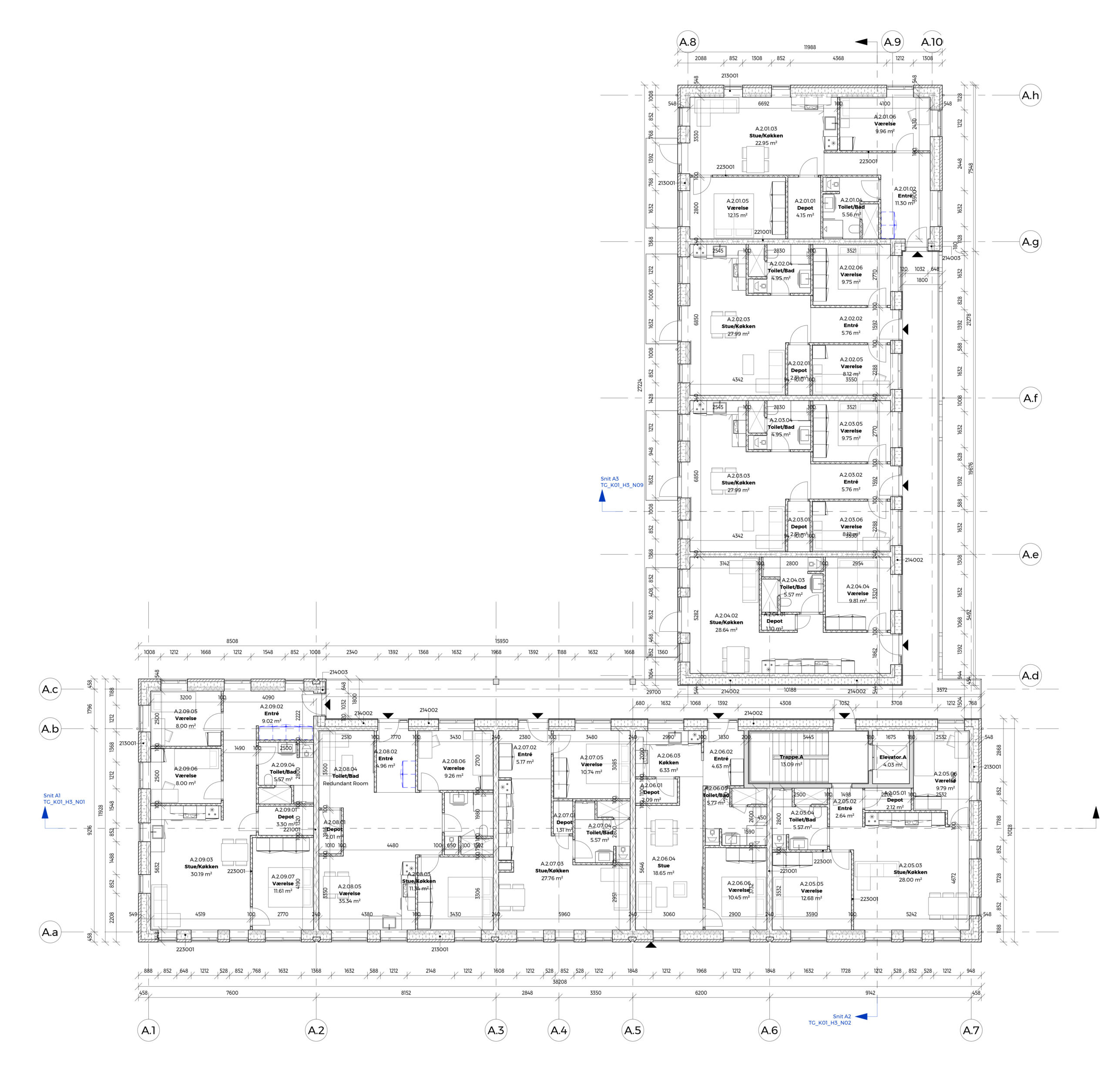
Om projektet

Bæredygtig Boligbyggeri i Tønders Historiske Kerne
 
I hjertet af Tønders gamle bymidte, hvor en tidligere tømmerhandel engang lå, opføres et nyt boligkompleks. Projektet vil omfatte omkring 4450 kvadratmeter almene boliger samt yderligere 700 kvadratmeter private penthouse-boliger.
 
På grunden står de gamle lagerhaller stadig stolt med deres karakteristiske struktur. Disse haller vil få en ny fremtid som en del af et bæredygtigt byggeri, hvor tradition, håndværk og genbrug af materialer vil spille en central rolle. Målet er at skabe en bygning, der ærer fortiden og samtidig fremmer en moderne og bæredygtig tilgang.
 
Inspirationen bag projektet er hentet fra Tønders ikoniske gavlhuse. Dette udtryk afspejles i byggeriets facader, hvor en smal facade mod gaden og baghuse, der trækker sig ind bag de slanke matrikler, skaber en sammenhængende æstetik. Elementer som karnapper, gavlmotiver og indgangspartier, der vender mod gaden, bidrager til at skabe en fremtidig struktur, der bygger på byens historiske karakteristika.
 
Stueetagen af boligerne vil have private haver, der vender ind mod det indre gårdrum, mens de øvrige boliger vil have enten private altaner eller udspringende balkoner langs adgangsvejene. Et markant træk i designet er de svalegange, der forbinder boligerne. Disse svalegange fremmer spontane møder og samvær mellem beboerne, der naturligt krydser hinandens veje på vej til og fra deres boliger. Denne arkitektoniske løsning bidrager til at skabe nærhed og fællesskab og mindsker samtidig følelsen af ensomhed i bymiljøet.​​​​​​​

123 maple avenue, houston, tx 56034
+1 (888) 765 4326 / 765 4327
info@domainname.com
Curabitur sagittis lectus quis purus interua vulputate justo hererit asellus ullcorper sem vel tellus ultrices ac suscipit orci
north america
123 maple avenue, houston, tx 56034
+1 (888) 765 4326 / 765 4327
info@domainname.com
123 maple avenue, houston, tx 56034
+1 (888) 765 4326 / 765 4327
info@domainname.com
Curabitur sagittis lectus quis purus interua vulputate justo hererit asellus ullcorper sem vel tellus ultrices ac suscipit orci
north america
123 maple avenue, houston, tx 56034
+1 (888) 765 4326 / 765 4327
info@domainname.com