Cases

Villa Sejs Søvej

Funktion: Villa
Geografi: Sejs, Silkeborg
Status: myndighedsprojekt
Størrelse: 300 m²
Opgavetype: privat opdrag

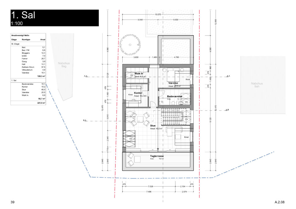
Om projektet

En villa i harmoni med Silkeborgs natur Drømmer du om en bolig, hvor naturen er din nærmeste nabo? Midt i det betagende sølandskab i Silkeborg ligger denne exceptionelle villa, der forener moderne komfort med enestående omgivelser. Her får du et hjem, hvor lys, luft og naturens skønhed står i centrum.

Optimal udnyttelse af grunden og udsigten Villaen er designet til at udnytte den smalle grund fuldt ud. Fra den overdækkede terrasse i terrænet til den imponerende tagterrasse er hver kvadratmeter gennemtænkt. Kviste og ovenlysvinduer inviterer dagslyset indenfor og skaber en unik forbindelse mellem indre og ydre. Hver dag kan du nyde solens gang – fra de blide morgenstråler til aftensolens varme, der spejler sig i søerne.

Indretning skabt til familien Boligen er skræddersyet til at opfylde familiens behov. Stueetagen byder på en dedikeret børnesektion, en åben og indbydende entré samt et lyst spise-køkkenområde med direkte adgang til den smukke naturgrund. På førstesalen venter en eksklusiv forældreafdeling og en hyggelig stue med udgang til en tagterrasse, hvor panoramaudsigten over søer og skov giver ro i sjælen.

Robust kvalitet og vedligeholdelsesvenlighed Villaen opføres i solide, vedligeholdelsesvenlige materialer, der garanterer lang holdbarhed. Det er et hjem, der kombinerer æstetik og funktionalitet, og som skaber de perfekte rammer for familielivet – i tæt samspil med Silkeborgs storslåede natur.

123 maple avenue, houston, tx 56034
+1 (888) 765 4326 / 765 4327
info@domainname.com
Curabitur sagittis lectus quis purus interua vulputate justo hererit asellus ullcorper sem vel tellus ultrices ac suscipit orci
north america
123 maple avenue, houston, tx 56034
+1 (888) 765 4326 / 765 4327
info@domainname.com
123 maple avenue, houston, tx 56034
+1 (888) 765 4326 / 765 4327
info@domainname.com
Curabitur sagittis lectus quis purus interua vulputate justo hererit asellus ullcorper sem vel tellus ultrices ac suscipit orci
north america
123 maple avenue, houston, tx 56034
+1 (888) 765 4326 / 765 4327
info@domainname.com