Cases

Villa W

Funktion: Villa
Geografi: Silkeborg
Status: opført 2020
Størrelse: 300 m²
Opgavetype: privat opdrag
Kunde: privat
Entreprenør: WILS a/s

Om projektet

Unik villa på en af Silkeborg bedste beliggenheder med udsigt ud over Silkeborg Langsø mod rådhuset. 
Grunden er lang og smal og har givet mulighed for at koble dansk tradition med nytænkende arkitektur. 
En villa som både tilpasser sig ved at spejle sig i omgivelserne, samtidig med at den fremstår markant og nutidig.
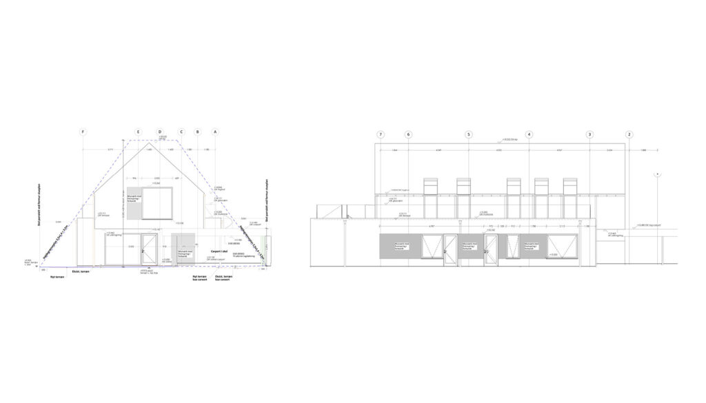
 Huse lægger sig ind imellem en række traditionelle saddeltagshuse i to etager og på sin egen måde mimer den udtrykket fra de omkringliggende naboer. Huset fremstår som et murstenbyggeri, som er både genkendelig og robust i sit udtryk og materialevalg.

Huset funktioner fordeler sig med 2/3 af funktionerne i stueetagen og 1/3 på 1.sal. Således er der ankomst og fællesfunktioner i stueetagen, samt børneværelser langs facaden og et stort multirum med stort vinduesparti, som vender ud mod haven og vandet. 1.sal indeholder forældreafdeling og køkken/alrum, som vender ud mod tagterrassen og udsigten.

Huset tager udgangspunkt i saddeltagshuset med udhæng, hvor disponeringen her er vendt 180 grader på hovedet. Således er stueetagen er udvidet ud mod skel, så udhænget i stedet for er blevet til en tagterrasse, hvor der gives adgang til 270 grader udsyn. På den måde fylder huset byggefeltet ud indenfor højdegrænseplanen og minimum afstand til skel.

1. sal er udformet med saddeltag og loft til kip og giver en voluminøs rumlighed, som opleves i køkken og opholdsrum, med vinduer langs facaden, samt stort udsigtsvindue mod søen. Etagen er let forskubbet ud over indgangen, så man får en overdækket og læ skabende ankomst. Ved at skubbe etagen opnås ydermere en sydvendt tagterrasse i direkte forbindelse med opholdsrummene, hvor naturen kan nydes fuldt ud.
De to etager er bundet sammen via en transparent spindeltrappe i entréen, som fungerer som bindeled mellem funktionerne i et åbent dobbelthøjt rum. På den måde ankommer man overdækket, men træder ind i et dobbelthøjt rum med masser af volumen for derefter at blive ledt op på 1.sal hvor de ca. 5 m til kip opleves som en lys og rummelig etage.

I forlængelse af huset fortsætter haven ned til Langsø, hvor der er privat solterrasse og både-/badebro.
123 maple avenue, houston, tx 56034
+1 (888) 765 4326 / 765 4327
info@domainname.com
Curabitur sagittis lectus quis purus interua vulputate justo hererit asellus ullcorper sem vel tellus ultrices ac suscipit orci
north america
123 maple avenue, houston, tx 56034
+1 (888) 765 4326 / 765 4327
info@domainname.com
123 maple avenue, houston, tx 56034
+1 (888) 765 4326 / 765 4327
info@domainname.com
Curabitur sagittis lectus quis purus interua vulputate justo hererit asellus ullcorper sem vel tellus ultrices ac suscipit orci
north america
123 maple avenue, houston, tx 56034
+1 (888) 765 4326 / 765 4327
info@domainname.com